Hansel Residence
Located in the South Guadalupe Trail neighborhood, this house was envisioned as a natural addition to the many historic adobes in the neighborhood, but also as a model of energy efficiency and an opportunity to showcase Kenny’s woodworking. Designed by Kenny DeLapp and Esther Fredrickson, the 2,450 square foot home is all adobe, fully electric, and incorporates some passive solar elements such as bancos for additional thermal mass, and south facing windows with solar shading. The house is heated and cooled with an innovative heat pump system, circulating hot water through the slab in the winter, and chilled water in the summer, aided by ceiling fans to circulate the air. The orientation of the house, positioning of the windows, and internal adobe walls for thermal mass all helped made this system possible.
The house also features some exceptionally cool woodworking by Kenny, including our take on the plywood and laminate kitchen, screen doors with traditional New Mexican geometric designs, exterior doors and sidelites, and bathroom vanities with drypack concrete countertops. All of the interior walls are finished with earthen plaster and a clay paint.
Early on in the build, we also used this opportunity to collaborate with the organization Adobe is not Software. They created a series of instructional videos based on this project, documenting adobe wall construction from footers to bond beam.
Many thousands of hours went into this house, and we are grateful for the work of the Albuquerque Joinery team and subcontractors for helping to bring this very special house to fruition.
Albuquerque, New Mexico
2024-2026




































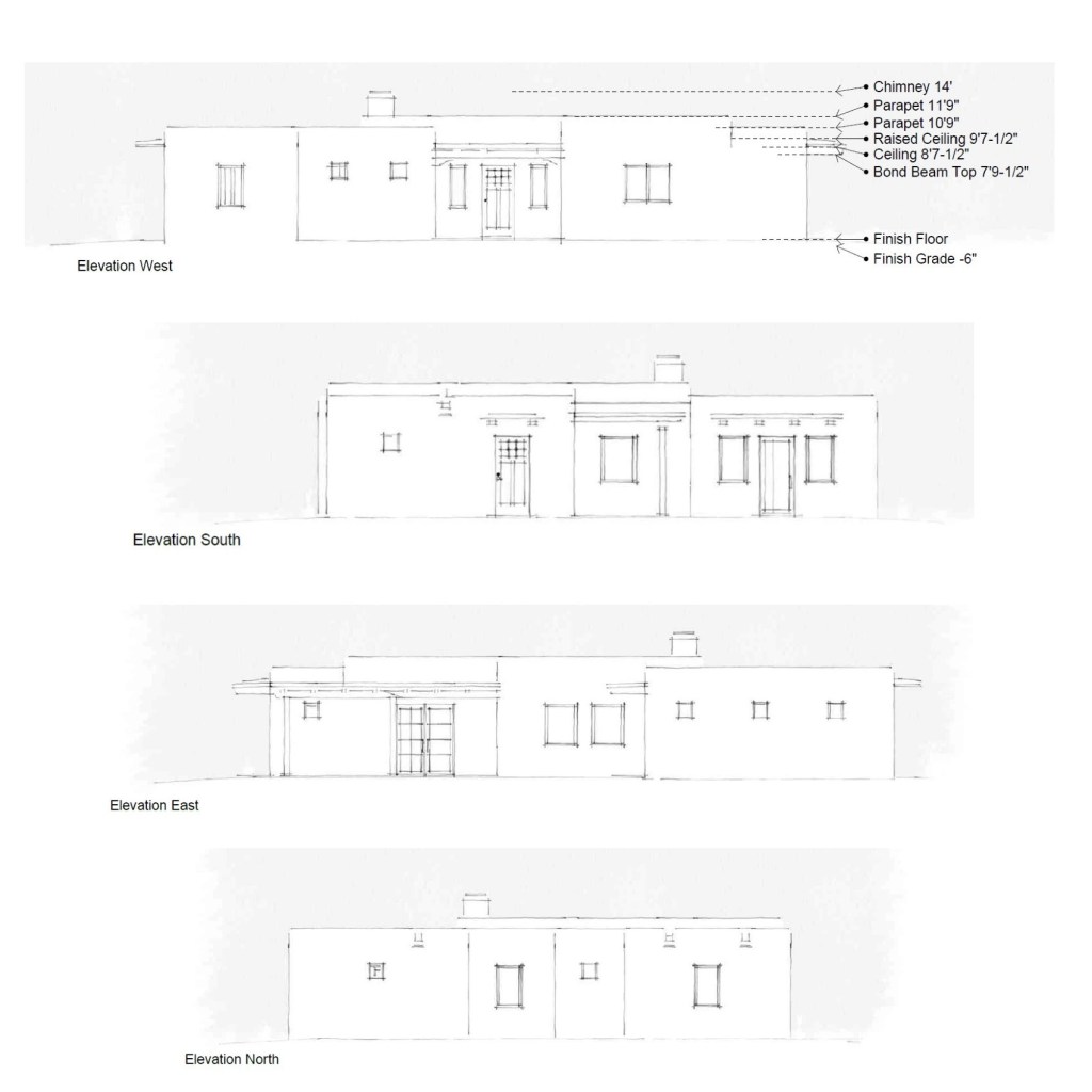
Finch Residence & Barn
Small, North Valley agricultural compound. This project consisted of two separate structures – a 1,750 sq ft house, and 800 sq ft barn – both adobe, of course. Construction took place over 2023 and 2024. With pitched roofs, exposed solid wood bond beams, rafter tails, and 3x window and door bucks, this build had an exceptional amount of exposed woodwork, inside and out. The majority of the wood used in this project was New Mexican grown Ponderosa pine, purchased as rough cut lumber, and carefully worked by our team. All the cabinetry, exterior doors, shelves, and built-ins were fabricated by Albuquerque Joinery, including the Siberian Elm kitchen countertop, and the dry pack concrete vanity tops. We used earthen plaster for the interior of both buildings, and a clay aliz for the Rumford fireplace.
Albuquerque, New Mexico
2023-2024































Buchan Residence
This modestly sized 1,850 sq ft home, on a quirky dead-end street in the North Valley, is a pueblo style adobe, with a wandering floor plan and many exterior corners. It was designed to be a natural addition to the neighborhood, paying homage to the many historic adobes in the Los Griegos neighborhood while not being overly imitative. The finished house includes brick floors, exposed ponderosa pine ceiling decking, radiant in-floor heat, and earthen plaster interior walls. All kitchen, pantry, and bathroom cabinetry was fabricated by Albuquerque Joinery.
Albuquerque, New Mexico
2021-2022


















DeLapp-Fredrickson Residence
Adobe home, designed and built by Kenny DeLapp and Esther Fredrickson using traditional materials and modern construction techniques. Our 1,600 sq ft home has two bedrooms and one bath, with brick floors, exposed vigas and decking, adobe mud plaster interior walls, site-built solid wood doors, radiant heat, and two portals. Built under an owner-builder permit.
South Valley, New Mexico
2015-2016




Adobe Workshop
Albuquerque Joinery’s adobe woodworking shop, built in 2018-2019. Since this is a workshop – not a residential dwelling – we weren’t held to the same rigorous energy code, and had more flexibility on how we could finish the outside of the building. We left the adobe brick exposed, and used adobe mud plaster under the eaves and gable ends of the roof. The interior also features a traditional earthen plaster, as well as exposed site-built rough sawn trusses, bond beam with timber frame style joinery, carriage garage doors, and wide-plank wood flooring. We sought to make this building more than just a shop, but something akin to a studio, built out of the material we find so inspiring.
South Valley, New Mexico
2018-2019




Contact
abqjoinery@gmail.com | 505-944-5654
GB-2 Residential Building Contractor License #402455
Bonded and Insured in New Mexico
© 2026 Esther Fredrickson

You must be logged in to post a comment.